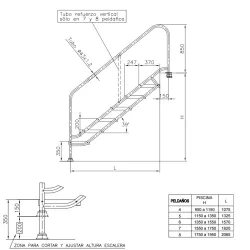
Escalera de piscina Acceso 5 peldaños
- Escalera piscina 5 peldaños
- Fabricada en acero inox. AISI-316 y peldaños en material plástico antideslizante
- Indicada para personas con movilidad reducida, mayores, etc.
- Acceso cómodo y fácil a la piscina
- Con una anchura de 500 mm entre pasamanos
- De fácil instalación previsto para conexión a toma equipotencial
Características Técnicas
Escalera Astralpool 00117
Escalera de piscina Acceso 5 peldaños especialmente concebida para piscinas de ejercicio de rehabilitación o terapias de agua para personas que no requieran elevadores.
Ancho de 500 mm entre los dos pasamanos.
Ajustable en altura. De fácil instalación. En tubo Ø 43 mm de acero inox AISI-316 pulido. Peldaños de material plástico con superficie antideslizante.
Suministradas con anclaje de fijación, previstos para conexión a toma equipotencial.
Permite a personas con movilidad reducida, personas mayores... acceder cómodamente a la piscina. Permite dar más autonomía con la consiguiente satisfacción personal.
También Te puede interesar
Últimos Productos visitados
Bomba enfriadora piscinas Astralpool ALASKA - 8



